Whitehorse Lane, London

  • £530,000
Whitehorse Lane, London, SE25 6UX
For Sale
Whitehorse Lane, London
Whitehorse Lane, London, SE25 6UX
  • £530,000

Overview

  • House - Terraced
  • Property Type
  • 3
  • Bedrooms
  • 1
  • Bathroom

Description

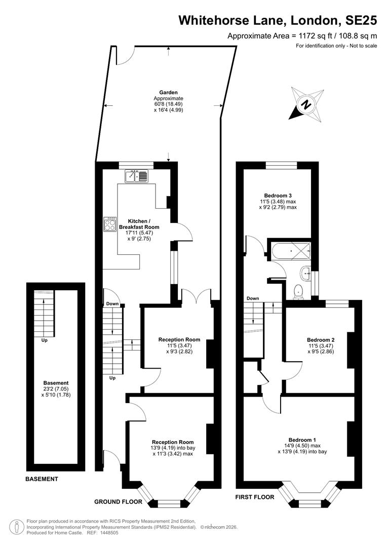
A deceptively spacious Victorian style Terraced house which has recently been redecorated throughout. This charming property features two generously sized reception rooms on the ground floor, with the dining room opening directly onto the garden. The kitchen/breakfast room is also of an excellent size and provides a fantastic space with access down to the cellar, which has also been redecorated. The cellar previously had some groundwater ingress through the floor during heavy rain, which is common locally. The floor has since been rebuilt with a membrane system by an experienced builder, and the cellar is now dry and used as a normal storage area. Upstairs, there are three well-proportioned bedrooms along with a family bathroom, making this an ideal layout for family living. The property enjoys excellent transport links being close to bus routes, Thornton Heath Mainline station and Norwood Junction BR/Overground station, which offers various routes into London, . Both Selhurst Park and the Whitehorse Meadow are local. The vibrant Crystal Palace Triangle is also within easy reach, offering a range of shops, cafés, and amenities. This property is also vacant and is being offered with no onward chain. Early viewing advised to avoid disappointment. We have also added some Computer generated photos showing the rooms furnished

Tenure : Freehold – Croydon council band C – EPC rating D

We carry out best endeavours to make our marketing material accurate and reliable, however they do not form part of any contract and are not to be relied upon. Any buyers are advised to seek verification from their solicitor or surveyor.

For broadband and mobile phone coverage at the property in question please visit: https://checker.ofcom.org.uk/

Property Documents

Whitehorse Lane, London
EE Rating
  • Address Whitehorse Lane
  • Zip/Postal Code SE25 6UX
  • Area London

Details

Updated on May 15, 2026 at 9:59 am
  • Price: £530,000
  • Bedrooms: 3
  • Rooms: 2
  • Bathroom: 1
  • Property Type: House - Terraced
  • Property Status: For Sale

Floor Plans

image

Description:

Contact Information

View Listings
Homecastle Estate Agents

Enquire About This Property

Similar Listings

We are South Norwood’s longest established estate agents and are open 7 days a week. Our experienced team have extensive knowledge of the local property market and can help you sell your home.

Opening Hours

Monday-Friday 9am-6pm
Saturday 9.30am-5pm
Sunday 11am-3pm

Compare listings

Compare
Homecastle Estate Agents
  • Homecastle Estate Agents